takeofficeなら掲載物件の仲介手数料は無料です

JS築地ビル

住所 東京都中央区築地3-7-10
交通 東京メトロ日比谷線築地」 徒歩2分
東京メトロ有楽町線新富町」 徒歩4分
竣工 1993年04月 構造 SRC
規模 地上9階, 地下2階 耐震基準 新耐震基準
床構造 フリーアクセス 40mm 空調設備 個別空調
天井高 2400mm 基準階面積 69.8坪(230.74m2)
コンセント容量 - 施工会社

最新の募集状況や類似物件については、
こちらにお問い合わせください。

JS築地ビル 外観

外観

  • JS築地ビル エントランス写真

    エントランス

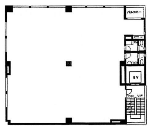
  • 基準階

    基準階

  • 4~5F

    4~5F

  • 6F

    6F

  • 7F

    7F

  • 9F

    9F

内見やお見積りなどの各種お問い合わせ

全物件
仲介手数料無料
仲介から
入居工事まで
ワンストップで対応
経験豊富なスタッフが
スピード感をもって
対応

周辺での似た条件の物件

非公開物件 多数あり!

お問い合わせフォーム