takeofficeなら掲載物件の仲介手数料は無料です

銀座大野ビル

住所 東京都中央区築地4-1-17
交通 東京メトロ日比谷線東銀座」 徒歩3分
都営大江戸線築地市場」 徒歩6分
東京メトロ日比谷線築地」 徒歩7分
竣工 1973年10月 構造 SRC
規模 地上9階, 地下1階 耐震基準 新耐震基準
床構造 フリーアクセス 50mm 空調設備 個別空調
天井高 2450mm 基準階面積 187.58坪(620.1m2)
コンセント容量 35VA/m2 施工会社

最新の募集状況や類似物件については、
こちらにお問い合わせください。

銀座大野ビル 外観

外観

  • 銀座大野ビル エントランス写真

    エントランス

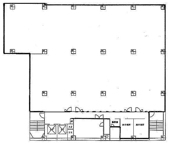
  • 基準階

    基準階

  • -1F

    -1F

建物パンフレット

建物パンフレットは作成時点のものであり、また計画段階のものも含まれる為、実際とは異なる場合がございます。

内見やお見積りなどの各種お問い合わせ

全物件
仲介手数料無料
仲介から
入居工事まで
ワンストップで対応
経験豊富なスタッフが
スピード感をもって
対応

周辺での似た条件の物件

非公開物件 多数あり!

お問い合わせフォーム