takeofficeなら掲載物件の仲介手数料は無料です

リッツ銀座ビルディング

住所 東京都中央区築地4-3-4
交通 都営浅草線東銀座」 徒歩4分
東京メトロ日比谷線築地」 徒歩5分
都営大江戸線築地市場」 徒歩5分
竣工 1972年06月 構造 SRC
規模 地上8階, 地下0階 耐震基準 旧耐震基準
床構造 - 空調設備 セントラル空調
天井高 - 基準階面積 --
コンセント容量 - 施工会社

最新の募集状況や類似物件については、
こちらにお問い合わせください。

リッツ銀座ビルディング 外観

外観

  • リッツ銀座ビルディング エントランス写真

    エントランス

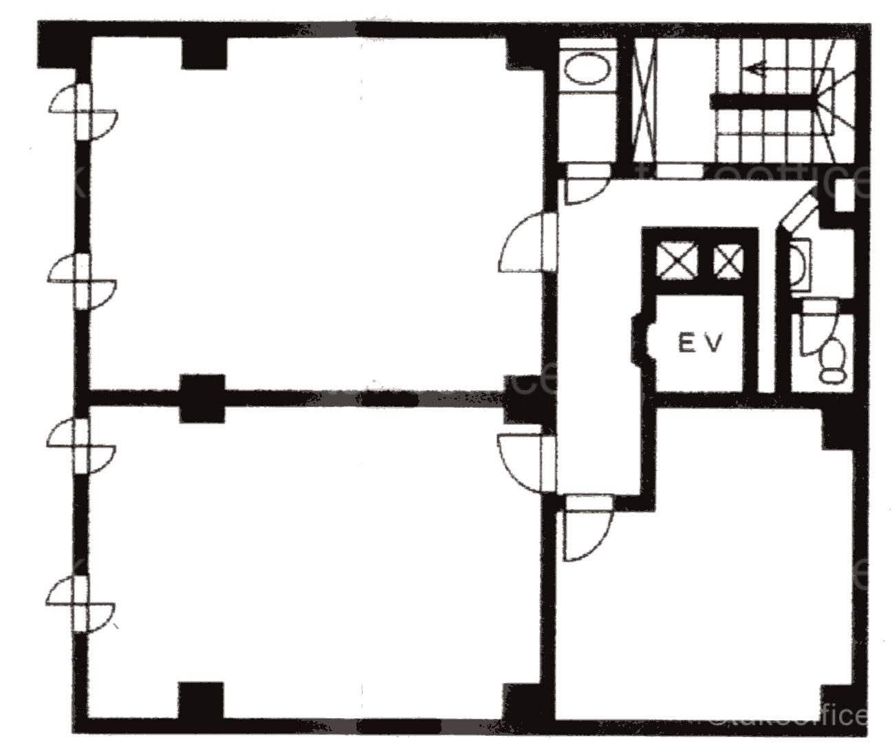
  • 2F

    2F

  • 7A

    7A

内見やお見積りなどの各種お問い合わせ

全物件
仲介手数料無料
仲介から
入居工事まで
ワンストップで対応
経験豊富なスタッフが
スピード感をもって
対応

周辺での似た条件の物件

非公開物件 多数あり!

お問い合わせフォーム