takeofficeなら掲載物件の仲介手数料は無料です

KDX銀座イーストビル

住所 東京都中央区入船3-7-2
交通 東京メトロ有楽町線新富町」 徒歩3分
東京メトロ日比谷線八丁堀」 徒歩5分
東京メトロ日比谷線築地」 徒歩5分
竣工 1991年08月 構造 SRC
規模 地上9階, 地下1階 耐震基準 新耐震基準
床構造 - 空調設備 個別空調
天井高 2540mm 基準階面積 156.87坪(518.58m2)
コンセント容量 - 施工会社

最新の募集状況や類似物件については、
こちらにお問い合わせください。

KDX銀座イーストビル 外観

外観

  • KDX銀座イーストビル エントランス写真

    エントランス

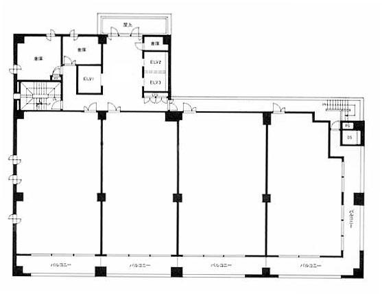
  • 基準階(2~8F)

    基準階(2~8F)

  • 1F

    1F

  • 9F

    9F

内見やお見積りなどの各種お問い合わせ

全物件
仲介手数料無料
仲介から
入居工事まで
ワンストップで対応
経験豊富なスタッフが
スピード感をもって
対応

周辺での似た条件の物件

非公開物件 多数あり!

お問い合わせフォーム