takeofficeなら掲載物件の仲介手数料は無料です

プロスペリテ八丁堀

住所 東京都中央区湊1-2-3
交通 JR京葉線八丁堀」 徒歩3分
東京メトロ有楽町線新富町」 徒歩8分
東京メトロ日比谷線八丁堀」 徒歩3分
竣工 1990年02月 構造 SRC
規模 地上8階, 地下1階 耐震基準 新耐震基準
床構造 - 空調設備 個別空調
天井高 2300mm 基準階面積 --
コンセント容量 - 施工会社

最新の募集状況や類似物件については、
こちらにお問い合わせください。

プロスペリテ八丁堀 外観

外観

  • プロスペリテ八丁堀 エントランス写真

    エントランス

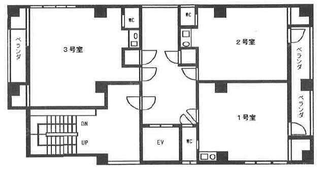
  • 基準階

    基準階

内見やお見積りなどの各種お問い合わせ

全物件
仲介手数料無料
仲介から
入居工事まで
ワンストップで対応
経験豊富なスタッフが
スピード感をもって
対応

周辺での似た条件の物件

非公開物件 多数あり!

お問い合わせフォーム