takeofficeなら掲載物件の仲介手数料は無料です

第29興和ビル別館

住所 東京都中央区築地2-11-24
交通 東京メトロ日比谷線築地」 徒歩3分
東京メトロ有楽町線新富町」 徒歩5分
都営浅草線東銀座」 徒歩7分
竣工 1992年08月 構造 SRC
規模 地上8階, 地下1階 耐震基準 新耐震基準
床構造 フリーアクセス 100mm 空調設備 個別空調
天井高 2600mm 基準階面積 88.47坪(292.46m2)
コンセント容量 - 施工会社

最新の募集状況や類似物件については、
こちらにお問い合わせください。

第29興和ビル別館 外観

外観

  • 第29興和ビル別館 エントランス写真

    エントランス

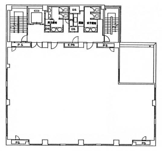
  • 5~8F

    5~8F

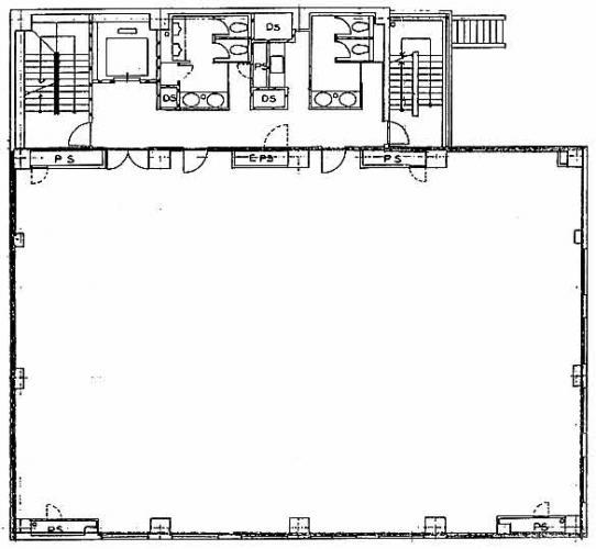
  • 2~3F

    2~3F

内見やお見積りなどの各種お問い合わせ

全物件
仲介手数料無料
仲介から
入居工事まで
ワンストップで対応
経験豊富なスタッフが
スピード感をもって
対応

周辺での似た条件の物件

非公開物件 多数あり!

お問い合わせフォーム