takeofficeなら掲載物件の仲介手数料は無料です

BR月島1ビル

住所 東京都中央区月島1-8-3
交通 東京メトロ有楽町線月島」 徒歩1分
都営大江戸線月島」 徒歩1分
竣工 1989年07月 構造 RC
規模 地上7階, 地下1階 耐震基準 新耐震基準
床構造 フリーアクセス 空調設備 個別空調
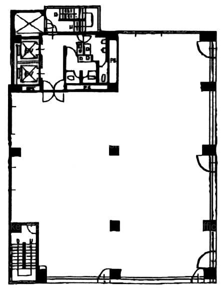
天井高 - 基準階面積 92.38坪(305.39m2)
コンセント容量 - 施工会社

最新の募集状況や類似物件については、
こちらにお問い合わせください。

BR月島1ビル 外観

外観

  • NOW PRINTING

    エントランス

  • 基準階

    基準階

  • 1F

    1F

内見やお見積りなどの各種お問い合わせ

全物件
仲介手数料無料
仲介から
入居工事まで
ワンストップで対応
経験豊富なスタッフが
スピード感をもって
対応

周辺での似た条件の物件

非公開物件 多数あり!

お問い合わせフォーム