takeofficeなら掲載物件の仲介手数料は無料です

月島NRビル

住所 東京都中央区月島3-24-5
交通 都営大江戸線月島」 徒歩5分
東京メトロ有楽町線月島」 徒歩5分
竣工 1991年03月 構造 SRC
規模 地上7階 耐震基準 新耐震基準
床構造 - 空調設備 個別空調
天井高 - 基準階面積 60.88坪(201.26m2)
コンセント容量 - 施工会社

最新の募集状況や類似物件については、
こちらにお問い合わせください。

月島NRビル 外観

外観

  • 月島NRビル エントランス写真

    エントランス

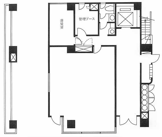
  • 基準階

    基準階

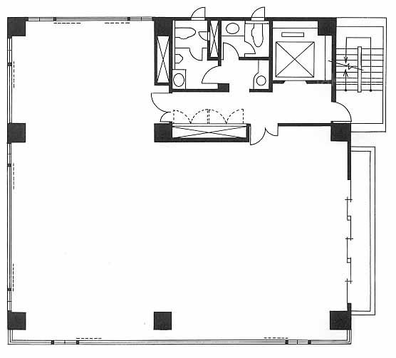
  • 1F

    1F

内見やお見積りなどの各種お問い合わせ

全物件
仲介手数料無料
仲介から
入居工事まで
ワンストップで対応
経験豊富なスタッフが
スピード感をもって
対応

周辺での似た条件の物件

非公開物件 多数あり!

お問い合わせフォーム