takeofficeなら掲載物件の仲介手数料は無料です

晴海4丁目ビルディング

住所 東京都中央区晴海4-1-1
交通 都営大江戸線勝どき」 徒歩9分
東京メトロ有楽町線月島」 徒歩17分
竣工 1969年 月 構造 SRC
規模 地上5階, 地下1階 耐震基準 旧耐震基準
床構造 フリーアクセス 空調設備 フロア別空調
天井高 2700mm 基準階面積 --
コンセント容量 30VA/m2 施工会社

最新の募集状況や類似物件については、
こちらにお問い合わせください。

晴海4丁目ビルディング 外観

外観

  • NOW PRINTING

    エントランス

  • 基準階

    基準階

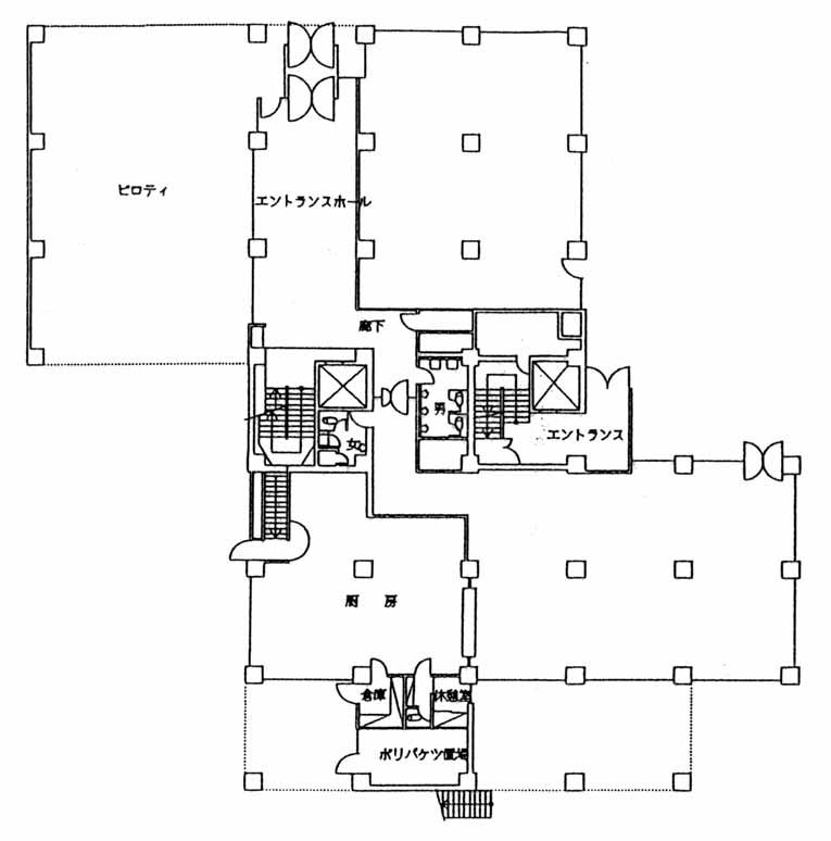
  • 1F

    1F

内見やお見積りなどの各種お問い合わせ

全物件
仲介手数料無料
仲介から
入居工事まで
ワンストップで対応
経験豊富なスタッフが
スピード感をもって
対応

周辺での似た条件の物件

非公開物件 多数あり!

お問い合わせフォーム