takeofficeなら掲載物件の仲介手数料は無料です

CROSS DOCK HARUMI

住所 東京都中央区晴海4-7-4
交通 都営大江戸線勝どき」 徒歩13分
竣工 1978年03月 構造 SRC+RC
規模 地上6階 耐震基準 新耐震基準
床構造 - 空調設備 個別空調
天井高 - 基準階面積 --
コンセント容量 63VA/m2 施工会社 奥村組

最新の募集状況や類似物件については、
こちらにお問い合わせください。

CROSS DOCK HARUMI 外観

外観

  • CROSS DOCK HARUMI エントランス写真

    エントランス

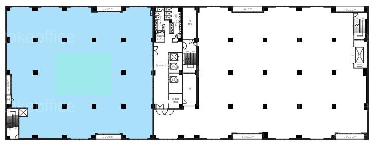
  • 1F

    1F

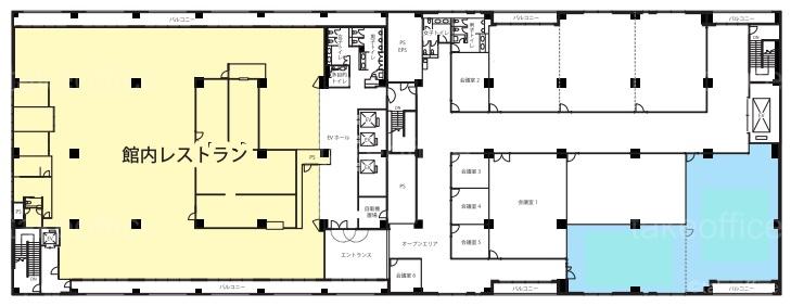
  • 4F

    4F

  • 6F

    6F

内見やお見積りなどの各種お問い合わせ

全物件
仲介手数料無料
仲介から
入居工事まで
ワンストップで対応
経験豊富なスタッフが
スピード感をもって
対応

周辺での似た条件の物件

非公開物件 多数あり!

お問い合わせフォーム