takeofficeなら掲載物件の仲介手数料は無料です

聖堂前ビル

住所 東京都文京区湯島1-2-5
交通 JR中央線御茶ノ水」 徒歩6分
東京メトロ丸ノ内線御茶ノ水」 徒歩6分
東京メトロ千代田線新御茶ノ水」 徒歩6分
竣工 1988年05月 構造 SRC+SRC
規模 地上9階 耐震基準 新耐震基準
床構造 - 空調設備 フロア別空調
天井高 2450mm 基準階面積 37.59坪(124.26m2)
コンセント容量 - 施工会社

最新の募集状況や類似物件については、
こちらにお問い合わせください。

聖堂前ビル 外観

外観

  • 聖堂前ビル エントランス写真

    エントランス

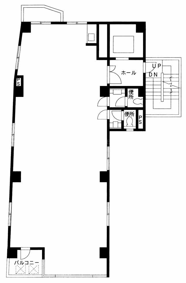
  • 6F

    6F

内見やお見積りなどの各種お問い合わせ

全物件
仲介手数料無料
仲介から
入居工事まで
ワンストップで対応
経験豊富なスタッフが
スピード感をもって
対応

周辺での似た条件の物件

非公開物件 多数あり!

お問い合わせフォーム