takeofficeなら掲載物件の仲介手数料は無料です

MSGビル

住所 東京都文京区本郷4-15-7
交通 都営三田線春日」 徒歩2分
東京メトロ丸ノ内線後楽園」 徒歩4分
竣工 1985年09月 構造 RC
規模 地上5階 耐震基準 新耐震基準
床構造 - 空調設備 -
天井高 - 基準階面積 25.11坪(83.01m2)
コンセント容量 - 施工会社

最新の募集状況や類似物件については、
こちらにお問い合わせください。

MSGビル 外観

外観

  • NOW PRINTING

    エントランス

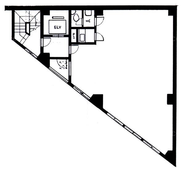
  • 基準階(2~4F)

    基準階(2~4F)

内見やお見積りなどの各種お問い合わせ

全物件
仲介手数料無料
仲介から
入居工事まで
ワンストップで対応
経験豊富なスタッフが
スピード感をもって
対応

周辺での似た条件の物件

非公開物件 多数あり!

お問い合わせフォーム