takeofficeなら掲載物件の仲介手数料は無料です

大学通信教育ビル

住所 東京都文京区本郷2-27-16
交通 東京メトロ丸ノ内線本郷三丁目」 徒歩2分
JR中央線御茶ノ水」 徒歩10分
竣工 1987年03月 構造 鉄骨造
規模 地上5階 耐震基準 新耐震基準
床構造 フリーアクセス 空調設備 個別空調
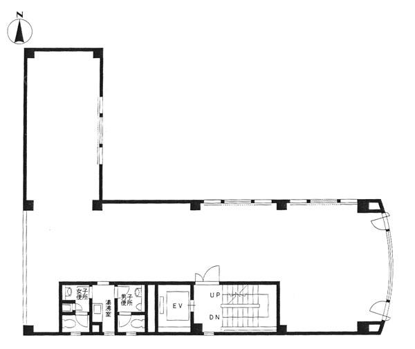
天井高 - 基準階面積 41.75坪(138.02m2)
コンセント容量 - 施工会社

最新の募集状況や類似物件については、
こちらにお問い合わせください。

大学通信教育ビル 外観

外観

  • NOW PRINTING

    エントランス

内見やお見積りなどの各種お問い合わせ

全物件
仲介手数料無料
仲介から
入居工事まで
ワンストップで対応
経験豊富なスタッフが
スピード感をもって
対応

周辺での似た条件の物件

非公開物件 多数あり!

お問い合わせフォーム