takeofficeなら掲載物件の仲介手数料は無料です

東京富山会館ビルディング

住所 東京都文京区白山5-1-3
交通 都営三田線白山」 徒歩1分
東京メトロ南北線本駒込」 徒歩7分
東京メトロ南北線東大前」 徒歩10分
竣工 1979年06月 構造 SRC
規模 地上7階, 地下1階 耐震基準 旧耐震基準
床構造 フリーアクセス 空調設備 個別空調
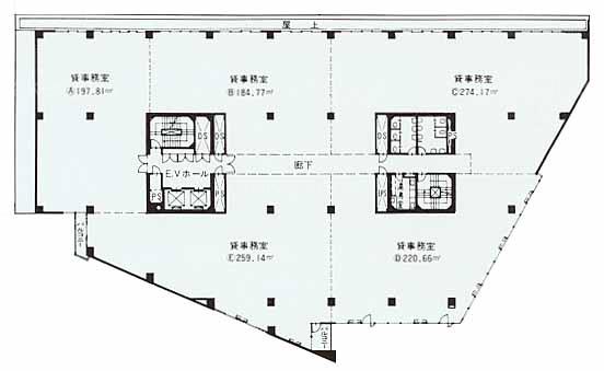
天井高 - 基準階面積 406.7坪(1344.46m2)
コンセント容量 - 施工会社

最新の募集状況や類似物件については、
こちらにお問い合わせください。

東京富山会館ビルディング 外観

外観

  • 東京富山会館ビルディング エントランス写真

    エントランス

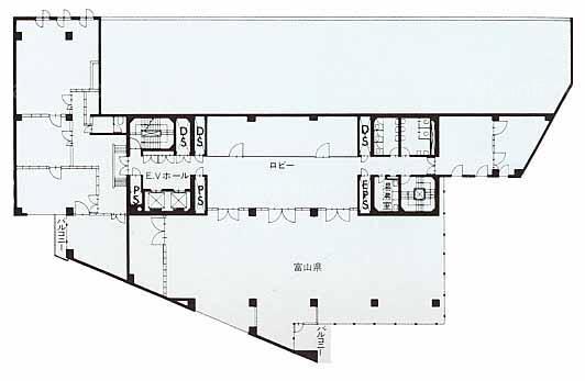
  • 基準階(2~3F)

    基準階(2~3F)

  • 4F

    4F

  • 5F

    5F

  • 6F

    6F

  • 7F

    7F

内見やお見積りなどの各種お問い合わせ

全物件
仲介手数料無料
仲介から
入居工事まで
ワンストップで対応
経験豊富なスタッフが
スピード感をもって
対応

周辺での似た条件の物件

非公開物件 多数あり!

お問い合わせフォーム