takeofficeなら掲載物件の仲介手数料は無料です

小石川トーセイビル

住所 東京都文京区小石川2-1-12
交通 東京メトロ南北線後楽園」 徒歩1分
都営大江戸線春日」 徒歩1分
都営三田線水道橋」 徒歩9分
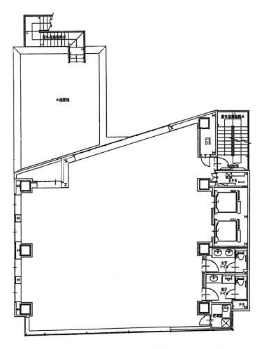
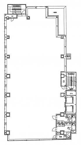
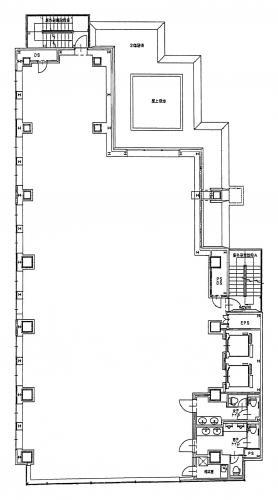
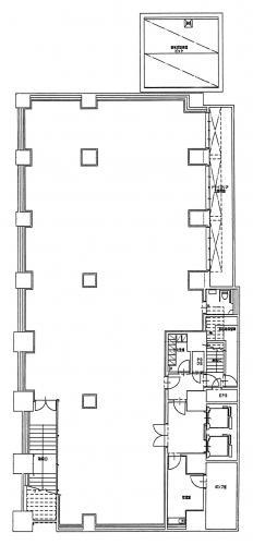
竣工 2010年02月 構造 鉄骨造
規模 地上10階, 地下1階 耐震基準 新耐震基準
床構造 フリーアクセス 空調設備 個別空調
天井高 2600mm 基準階面積 59.48坪(196.63m2)
コンセント容量 - 施工会社

最新の募集状況や類似物件については、
こちらにお問い合わせください。

小石川トーセイビル 外観

外観

内見やお見積りなどの各種お問い合わせ

全物件
仲介手数料無料
仲介から
入居工事まで
ワンストップで対応
経験豊富なスタッフが
スピード感をもって
対応

周辺での似た条件の物件

非公開物件 多数あり!

お問い合わせフォーム