takeofficeなら掲載物件の仲介手数料は無料です

吉田ビル

住所 東京都文京区大塚3-20-1
交通 東京メトロ丸ノ内線茗荷谷」 徒歩7分
東京メトロ丸ノ内線新大塚」 徒歩9分
東京メトロ有楽町線護国寺」 徒歩9分
竣工 1992年07月 構造 RC
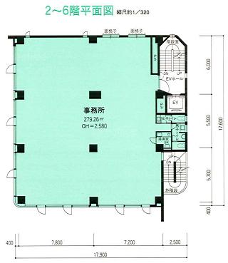
規模 地上7階, 地下1階 耐震基準 新耐震基準
床構造 フリーアクセス 38mm 空調設備 個別空調
天井高 2580mm 基準階面積 84.47坪(279.24m2)
コンセント容量 - 施工会社

最新の募集状況や類似物件については、
こちらにお問い合わせください。

吉田ビル 外観

外観

  • 吉田ビル エントランス写真

    エントランス

内見やお見積りなどの各種お問い合わせ

全物件
仲介手数料無料
仲介から
入居工事まで
ワンストップで対応
経験豊富なスタッフが
スピード感をもって
対応

周辺での似た条件の物件

非公開物件 多数あり!

お問い合わせフォーム