takeofficeなら掲載物件の仲介手数料は無料です

偕楽ビル寿

住所 東京都台東区寿2-1-13
交通 東京メトロ銀座線田原町」 徒歩2分
都営大江戸線蔵前」 徒歩5分
東京メトロ銀座線浅草」 徒歩8分
竣工 1992年02月 構造 鉄骨造
規模 地上9階 耐震基準 新耐震基準
床構造 フリーアクセス 50mm 空調設備 個別空調
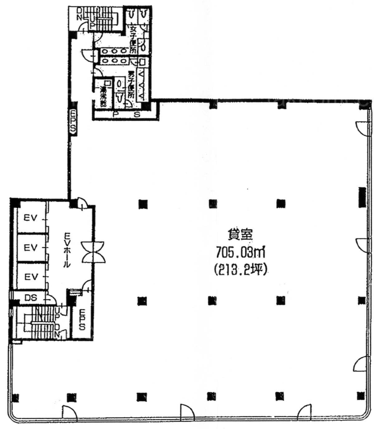
天井高 2450mm 基準階面積 213.2坪(704.79m2)
コンセント容量 - 施工会社

最新の募集状況や類似物件については、
こちらにお問い合わせください。

偕楽ビル寿 外観

外観

  • 偕楽ビル寿 エントランス写真

    エントランス

  • 基準階

    基準階

内見やお見積りなどの各種お問い合わせ

全物件
仲介手数料無料
仲介から
入居工事まで
ワンストップで対応
経験豊富なスタッフが
スピード感をもって
対応

周辺での似た条件の物件

非公開物件 多数あり!

お問い合わせフォーム