takeofficeなら掲載物件の仲介手数料は無料です

蔵前セントラルビル

住所 東京都台東区蔵前3-1-10
交通 都営大江戸線蔵前」 徒歩1分
竣工 1992年11月 構造 SRC
規模 地上9階, 地下1階 耐震基準 新耐震基準
床構造 フリーアクセス 50mm 空調設備 個別空調
天井高 2550mm 基準階面積 116.84坪(386.25m2)
コンセント容量 60VA/m2 施工会社

最新の募集状況や類似物件については、
こちらにお問い合わせください。

蔵前セントラルビル 外観

外観

  • 蔵前セントラルビル エントランス写真

    エントランス

  • 基準階

    基準階

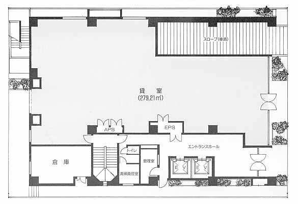
  • 1F

    1F

内見やお見積りなどの各種お問い合わせ

全物件
仲介手数料無料
仲介から
入居工事まで
ワンストップで対応
経験豊富なスタッフが
スピード感をもって
対応

周辺での似た条件の物件

非公開物件 多数あり!

お問い合わせフォーム