takeofficeなら掲載物件の仲介手数料は無料です

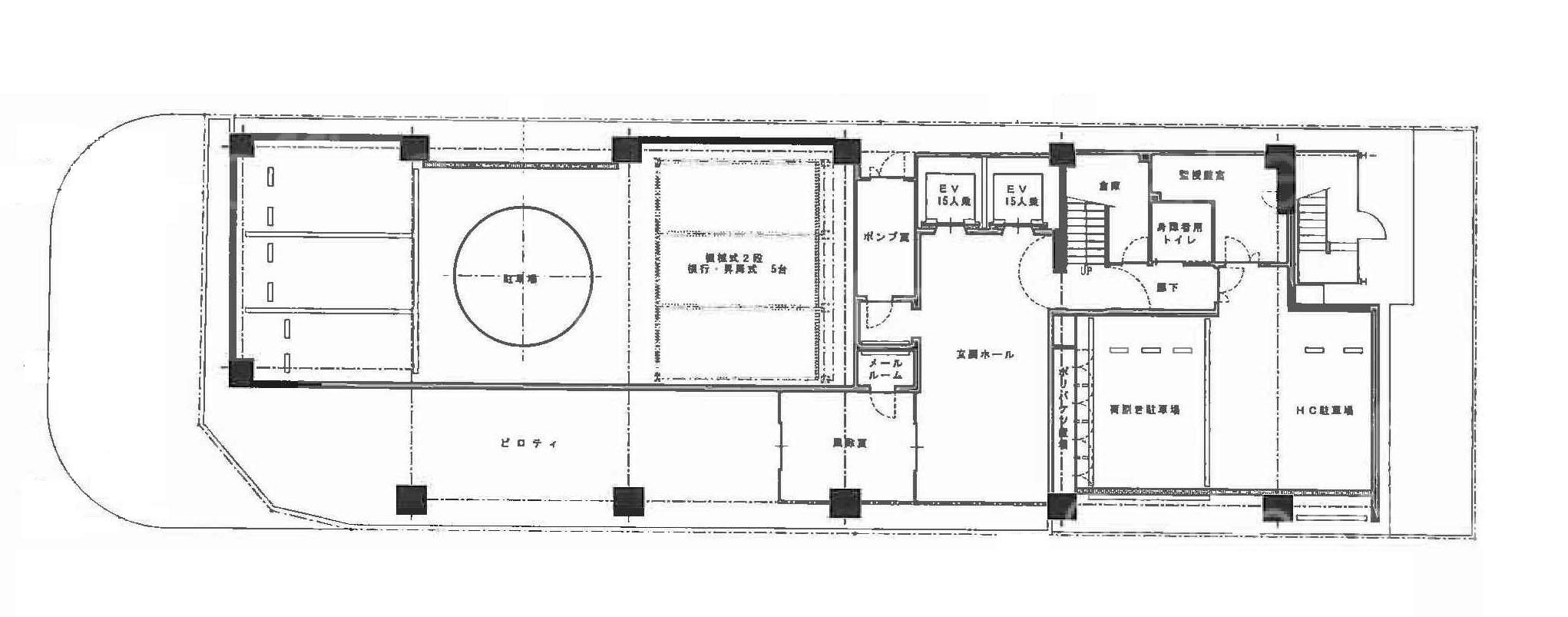
TFビル(旧:浅草橋ビル)

住所 東京都台東区蔵前1-5-1
交通 JR総武本線浅草橋」 徒歩6分
都営浅草線浅草橋」 徒歩3分
竣工 2008年12月 構造 鉄骨造+SRC
規模 地上8階 耐震基準 新耐震基準
床構造 フリーアクセス 100mm 空調設備 個別空調
天井高 2800mm 基準階面積 123.06坪(406.81m2)
コンセント容量 60VA/m2 施工会社 竹中工務店

最新の募集状況や類似物件については、
こちらにお問い合わせください。

TFビル(旧:浅草橋ビル) 外観

外観

建物パンフレット

建物パンフレットは作成時点のものであり、また計画段階のものも含まれる為、実際とは異なる場合がございます。

内見やお見積りなどの各種お問い合わせ

全物件
仲介手数料無料
仲介から
入居工事まで
ワンストップで対応
経験豊富なスタッフが
スピード感をもって
対応

周辺での似た条件の物件

非公開物件 多数あり!

お問い合わせフォーム