takeofficeなら掲載物件の仲介手数料は無料です

浅草橋東口ビル

住所 東京都台東区浅草橋1-30-1
交通 都営浅草線浅草橋」 徒歩1分
JR総武本線浅草橋」 徒歩1分
竣工 1990年10月 構造 鉄骨造+SRC
規模 地上8階, 地下1階 耐震基準 新耐震基準
床構造 フリーアクセス 空調設備 個別空調
天井高 - 基準階面積 46.86坪(154.91m2)
コンセント容量 - 施工会社

最新の募集状況や類似物件については、
こちらにお問い合わせください。

浅草橋東口ビル 外観

外観

  • NOW PRINTING

    エントランス

  • 基準階(2~8F)

    基準階(2~8F)

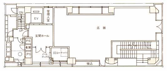
  • 1F

    1F

内見やお見積りなどの各種お問い合わせ

全物件
仲介手数料無料
仲介から
入居工事まで
ワンストップで対応
経験豊富なスタッフが
スピード感をもって
対応

周辺での似た条件の物件

非公開物件 多数あり!

お問い合わせフォーム