takeofficeなら掲載物件の仲介手数料は無料です

イトウ第2ビル

住所 東京都台東区浅草橋5-5-10
交通 JR総武本線浅草橋」 徒歩6分
東京メトロ日比谷線秋葉原」 徒歩6分
JR京浜東北線秋葉原」 徒歩7分
竣工 1986年06月 構造 RC
規模 地上5階 耐震基準 新耐震基準
床構造 フリーアクセス 空調設備 個別空調
天井高 - 基準階面積 39.8坪(131.57m2)
コンセント容量 - 施工会社

最新の募集状況や類似物件については、
こちらにお問い合わせください。

イトウ第2ビル 外観

外観

  • イトウ第2ビル エントランス写真

    エントランス

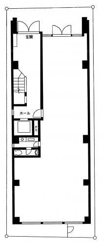
  • 基準階

    基準階

  • 1F

    1F

内見やお見積りなどの各種お問い合わせ

全物件
仲介手数料無料
仲介から
入居工事まで
ワンストップで対応
経験豊富なスタッフが
スピード感をもって
対応

周辺での似た条件の物件

非公開物件 多数あり!

お問い合わせフォーム