takeofficeなら掲載物件の仲介手数料は無料です

CSタワー

住所 東京都台東区浅草橋5-20-8
交通 JR総武本線浅草橋」 徒歩9分
都営浅草線浅草橋」 徒歩9分
東京メトロ日比谷線秋葉原」 徒歩10分
竣工 1991年08月 構造 SRC+鉄骨造
規模 地上18階, 地下2階 耐震基準 新耐震基準
床構造 フリーアクセス 100mm 空調設備 ゾーン空調
天井高 2600mm 基準階面積 348.14坪(1150.88m2)
コンセント容量 - 施工会社

最新の募集状況や類似物件については、
こちらにお問い合わせください。

CSタワー 外観

外観

  • NOW PRINTING

    エントランス

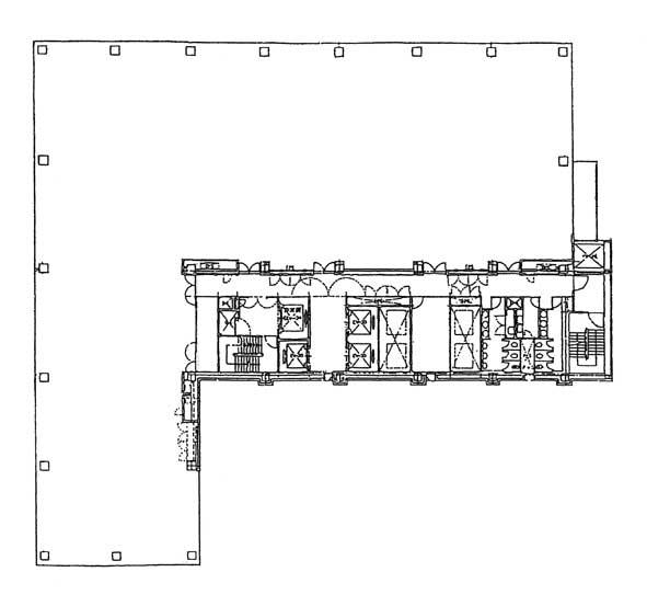
  • 基準階(3~9F)

    基準階(3~9F)

内見やお見積りなどの各種お問い合わせ

全物件
仲介手数料無料
仲介から
入居工事まで
ワンストップで対応
経験豊富なスタッフが
スピード感をもって
対応

周辺での似た条件の物件

非公開物件 多数あり!

お問い合わせフォーム