takeofficeなら掲載物件の仲介手数料は無料です

ヒューリック浅草橋ビル

住所 東京都台東区浅草橋1-22-16
交通 JR総武本線浅草橋」 徒歩1分
都営浅草線浅草橋」 徒歩2分
竣工 2013年02月 構造 鉄骨造+SRC
規模 地上12階, 地下2階 耐震基準 新耐震基準
床構造 フリーアクセス 100mm 空調設備 個別空調
天井高 2800mm 基準階面積 333.79坪(1103.44m2)
コンセント容量 - 施工会社

最新の募集状況や類似物件については、
こちらにお問い合わせください。

ヒューリック浅草橋ビル 外観

外観

  • NOW PRINTING

    エントランス

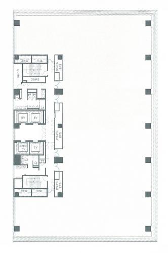
  • 基準階

    基準階

  • 1F

    1F

建物パンフレット

建物パンフレットは作成時点のものであり、また計画段階のものも含まれる為、実際とは異なる場合がございます。

内見やお見積りなどの各種お問い合わせ

全物件
仲介手数料無料
仲介から
入居工事まで
ワンストップで対応
経験豊富なスタッフが
スピード感をもって
対応

周辺での似た条件の物件

非公開物件 多数あり!

お問い合わせフォーム