takeofficeなら掲載物件の仲介手数料は無料です

PF浅草橋ビル

住所 東京都台東区浅草橋1-19-10
交通 JR総武本線浅草橋」 徒歩1分
竣工 2015年03月 構造 RC
規模 地上7階 耐震基準 新耐震基準
床構造 フリーアクセス 空調設備 個別空調
天井高 - 基準階面積 23.59坪(77.98m2)
コンセント容量 - 施工会社

最新の募集状況や類似物件については、
こちらにお問い合わせください。

PF浅草橋ビル 外観

外観

  • PF浅草橋ビル エントランス写真

    エントランス

  • 基準階(3~5F)

    基準階(3~5F)

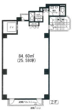
  • 2F

    2F

内見やお見積りなどの各種お問い合わせ

全物件
仲介手数料無料
仲介から
入居工事まで
ワンストップで対応
経験豊富なスタッフが
スピード感をもって
対応

周辺での似た条件の物件

非公開物件 多数あり!

お問い合わせフォーム