takeofficeなら掲載物件の仲介手数料は無料です

ザイマックス東上野ビル

住所 東京都台東区東上野1-11-4
交通 東京メトロ日比谷線仲御徒町」 徒歩3分
都営大江戸線新御徒町」 徒歩4分
JR京浜東北線御徒町」 徒歩5分
竣工 1999年04月 構造 SRC
規模 地上8階 耐震基準 新耐震基準
床構造 フリーアクセス 75mm 空調設備 フロア別空調
天井高 2550mm 基準階面積 68.43坪(226.21m2)
コンセント容量 - 施工会社
坪面積 用途 賃料 坪単価 共益費 入居可能日
5 70.67坪 事務所 相談 相談 相談 2026年10月1日
ザイマックス東上野ビル 外観

外観

  • ザイマックス東上野ビル エントランス写真

    エントランス

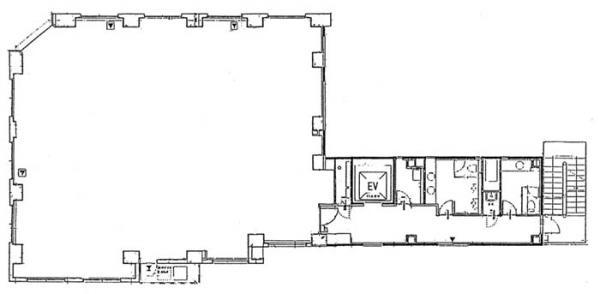
  • 基準階(2~8F)

    基準階(2~8F)

内見やお見積りなどの各種お問い合わせ

全物件
仲介手数料無料
仲介から
入居工事まで
ワンストップで対応
経験豊富なスタッフが
スピード感をもって
対応

※「ご相談」と記載されている項目について
賃貸人が募集賃料条件を守秘義務の関係から明示していない場合に、【ご相談】と記載しております。
フリーレント(賃料免除)期間、使用面積、入居時期、テナント様の与信などによりご提示できる条件が若干変化いたします。
お手数ですが、詳細につきましては、上記よりお問い合わせください。

周辺での似た条件の物件

非公開物件 多数あり!

お問い合わせフォーム