takeofficeなら掲載物件の仲介手数料は無料です

増田ビル

住所 東京都台東区東上野2-13-11
交通 東京メトロ日比谷線上野」 徒歩4分
JR山手線上野」 徒歩6分
JR京浜東北線御徒町」 徒歩6分
竣工 1984年 構造 RC
規模 地上5階, 地下0階 耐震基準 新耐震基準
床構造 - 空調設備 -
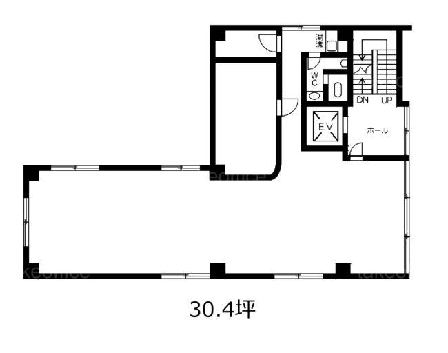
天井高 - 基準階面積 30坪(99m2)
コンセント容量 - 施工会社

最新の募集状況や類似物件については、
こちらにお問い合わせください。

増田ビル 外観

外観

  • NOW PRINTING

    エントランス

内見やお見積りなどの各種お問い合わせ

全物件
仲介手数料無料
仲介から
入居工事まで
ワンストップで対応
経験豊富なスタッフが
スピード感をもって
対応

周辺での似た条件の物件

非公開物件 多数あり!

お問い合わせフォーム