takeofficeなら掲載物件の仲介手数料は無料です

共同ビル(上野)

住所 東京都台東区東上野2-18-7
交通 東京メトロ銀座線上野」 徒歩1分
JR山手線上野」 徒歩2分
竣工 1968年01月 構造 SRC
規模 地上10階, 地下1階 耐震基準 旧耐震基準
床構造 - 空調設備 セントラル空調
天井高 2350mm 基準階面積 167坪(554m2)
コンセント容量 - 施工会社

最新の募集状況や類似物件については、
こちらにお問い合わせください。

共同ビル(上野) 外観

外観

  • NOW PRINTING

    エントランス

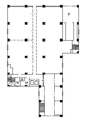
  • 2F

    2F

  • 1F

    1F

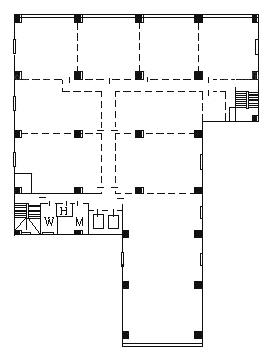
  • 3F

    3F

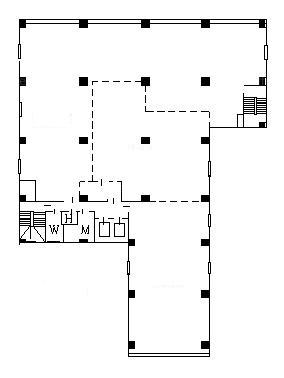
  • 4F

    4F

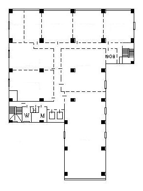
  • 5F

    5F

  • 6F

    6F

  • 7F

    7F

  • 8F

    8F

  • 9F

    9F

  • 10F

    10F

内見やお見積りなどの各種お問い合わせ

全物件
仲介手数料無料
仲介から
入居工事まで
ワンストップで対応
経験豊富なスタッフが
スピード感をもって
対応

周辺での似た条件の物件

非公開物件 多数あり!

お問い合わせフォーム