takeofficeなら掲載物件の仲介手数料は無料です

ユーティビル

住所 東京都台東区東上野2-21-13
交通 JR山手線上野」 徒歩5分
東京メトロ日比谷線仲御徒町」 徒歩5分
東京メトロ銀座線稲荷町」 徒歩6分
竣工 1992年04月 構造 SRC
規模 地上9階 耐震基準 新耐震基準
床構造 - 空調設備 個別空調
天井高 - 基準階面積 40.08坪(132.5m2)
コンセント容量 - 施工会社

最新の募集状況や類似物件については、
こちらにお問い合わせください。

ユーティビル 外観

外観

  • ユーティビル エントランス写真

    エントランス

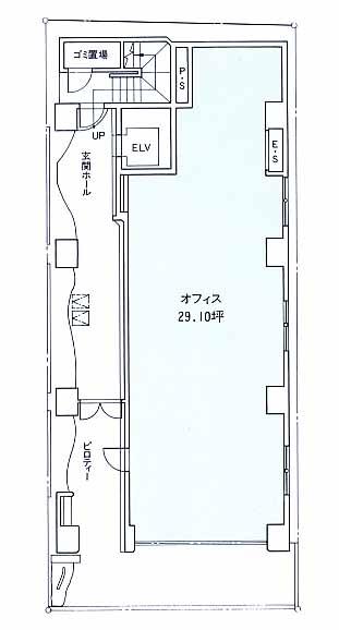
  • 基準階(3~7F)

    基準階(3~7F)

  • 1F

    1F

  • 2F

    2F

  • 8F

    8F

内見やお見積りなどの各種お問い合わせ

全物件
仲介手数料無料
仲介から
入居工事まで
ワンストップで対応
経験豊富なスタッフが
スピード感をもって
対応

周辺での似た条件の物件

非公開物件 多数あり!

お問い合わせフォーム