takeofficeなら掲載物件の仲介手数料は無料です

サンエイビル

住所 東京都台東区台東1-13-6
交通 JR山手線秋葉原」 徒歩5分
東京メトロ日比谷線秋葉原」 徒歩5分
TX秋葉原」 徒歩5分
竣工 1975年01月 構造 RC
規模 地上6階, 地下0階 耐震基準 旧耐震基準
床構造 - 空調設備 個別空調
天井高 - 基準階面積 --
コンセント容量 - 施工会社

最新の募集状況や類似物件については、
こちらにお問い合わせください。

サンエイビル 外観

外観

  • サンエイビル エントランス写真

    エントランス

  • 5F

    5F

  • 2F3F

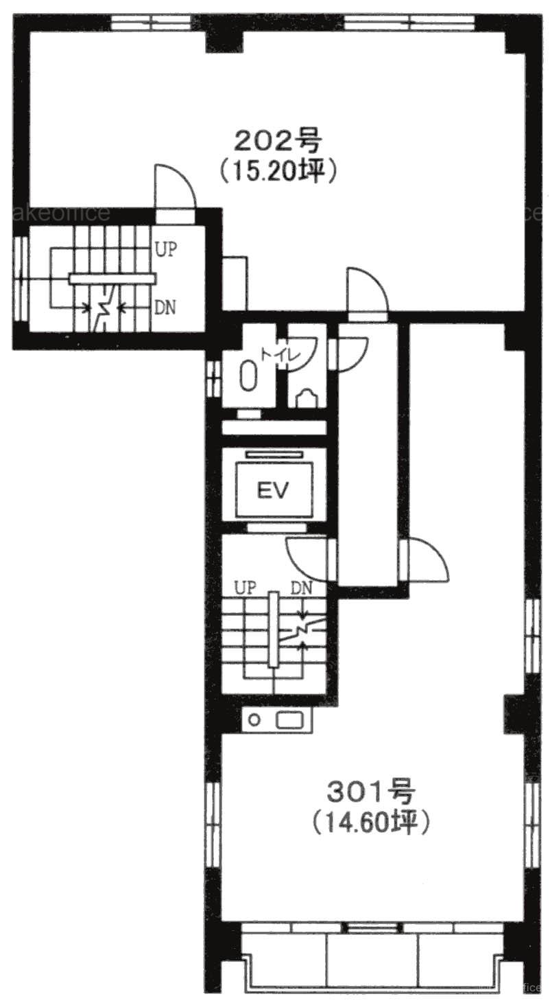
    2F3F

内見やお見積りなどの各種お問い合わせ

全物件
仲介手数料無料
仲介から
入居工事まで
ワンストップで対応
経験豊富なスタッフが
スピード感をもって
対応

周辺での似た条件の物件

非公開物件 多数あり!

お問い合わせフォーム