takeofficeなら掲載物件の仲介手数料は無料です

加藤ビル

住所 東京都台東区台東3-41-4
交通 東京メトロ日比谷線仲御徒町」 徒歩1分
JR山手線御徒町」 徒歩4分
竣工 1988年 構造 -
規模 地上8階 耐震基準 新耐震基準
床構造 - 空調設備 個別空調
天井高 2460mm 基準階面積 34坪(112.4m2)
コンセント容量 - 施工会社

最新の募集状況や類似物件については、
こちらにお問い合わせください。

加藤ビル 外観

外観

  • 加藤ビル エントランス写真

    エントランス

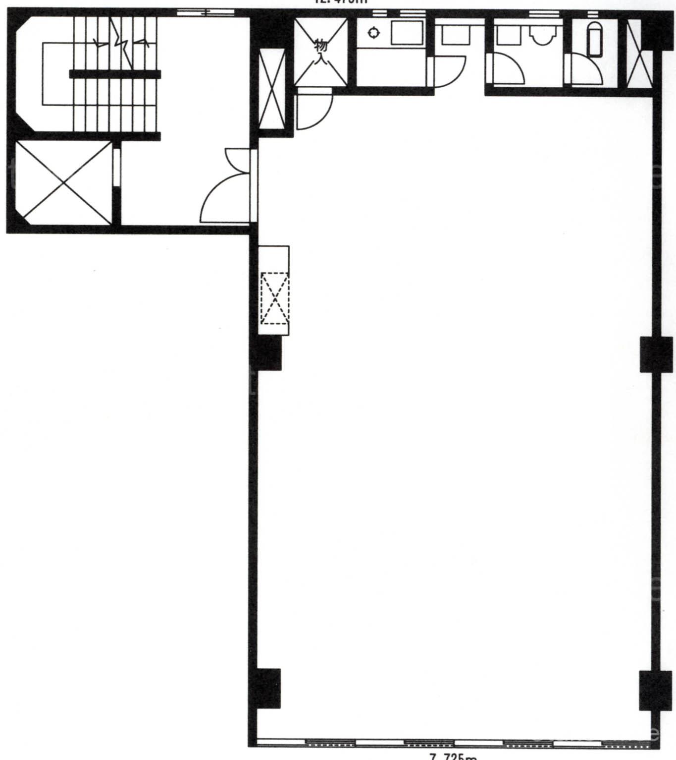
  • 基準階

    基準階

内見やお見積りなどの各種お問い合わせ

全物件
仲介手数料無料
仲介から
入居工事まで
ワンストップで対応
経験豊富なスタッフが
スピード感をもって
対応

周辺での似た条件の物件

非公開物件 多数あり!

お問い合わせフォーム