takeofficeなら掲載物件の仲介手数料は無料です

タマタビル

住所 東京都台東区台東4-5-1
交通 東京メトロ日比谷線仲御徒町」 徒歩3分
都営大江戸線新御徒町」 徒歩5分
JR山手線御徒町」 徒歩7分
竣工 1991年12月 構造 SRC
規模 地上8階 耐震基準 新耐震基準
床構造 - 空調設備 個別空調
天井高 - 基準階面積 47.57坪(157.26m2)
コンセント容量 - 施工会社

最新の募集状況や類似物件については、
こちらにお問い合わせください。

タマタビル 外観

外観

  • タマタビル エントランス写真

    エントランス

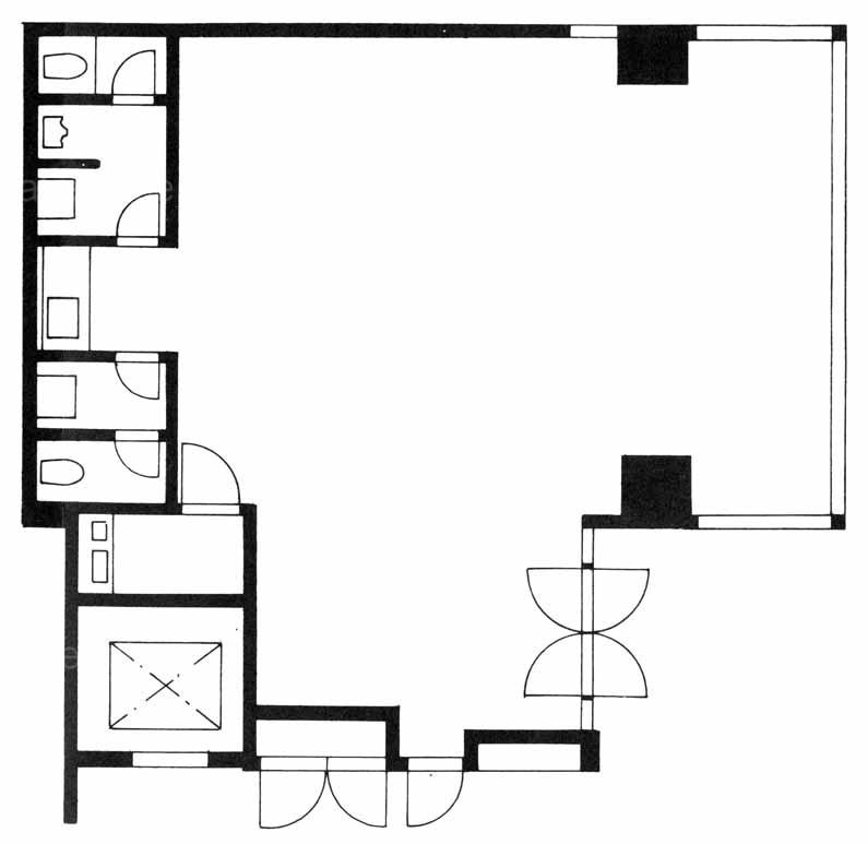
  • 基準階

    基準階

  • 1F

    1F

内見やお見積りなどの各種お問い合わせ

全物件
仲介手数料無料
仲介から
入居工事まで
ワンストップで対応
経験豊富なスタッフが
スピード感をもって
対応

周辺での似た条件の物件

非公開物件 多数あり!

お問い合わせフォーム