takeofficeなら掲載物件の仲介手数料は無料です

こうしんビル

住所 東京都台東区台東4-29-8
交通 東京メトロ日比谷線仲御徒町」 徒歩3分
都営大江戸線新御徒町」 徒歩4分
JR山手線御徒町」 徒歩5分
竣工 2004年09月 構造 RC
規模 地上7階, 地下1階 耐震基準 新耐震基準
床構造 フリーアクセス 空調設備 個別空調
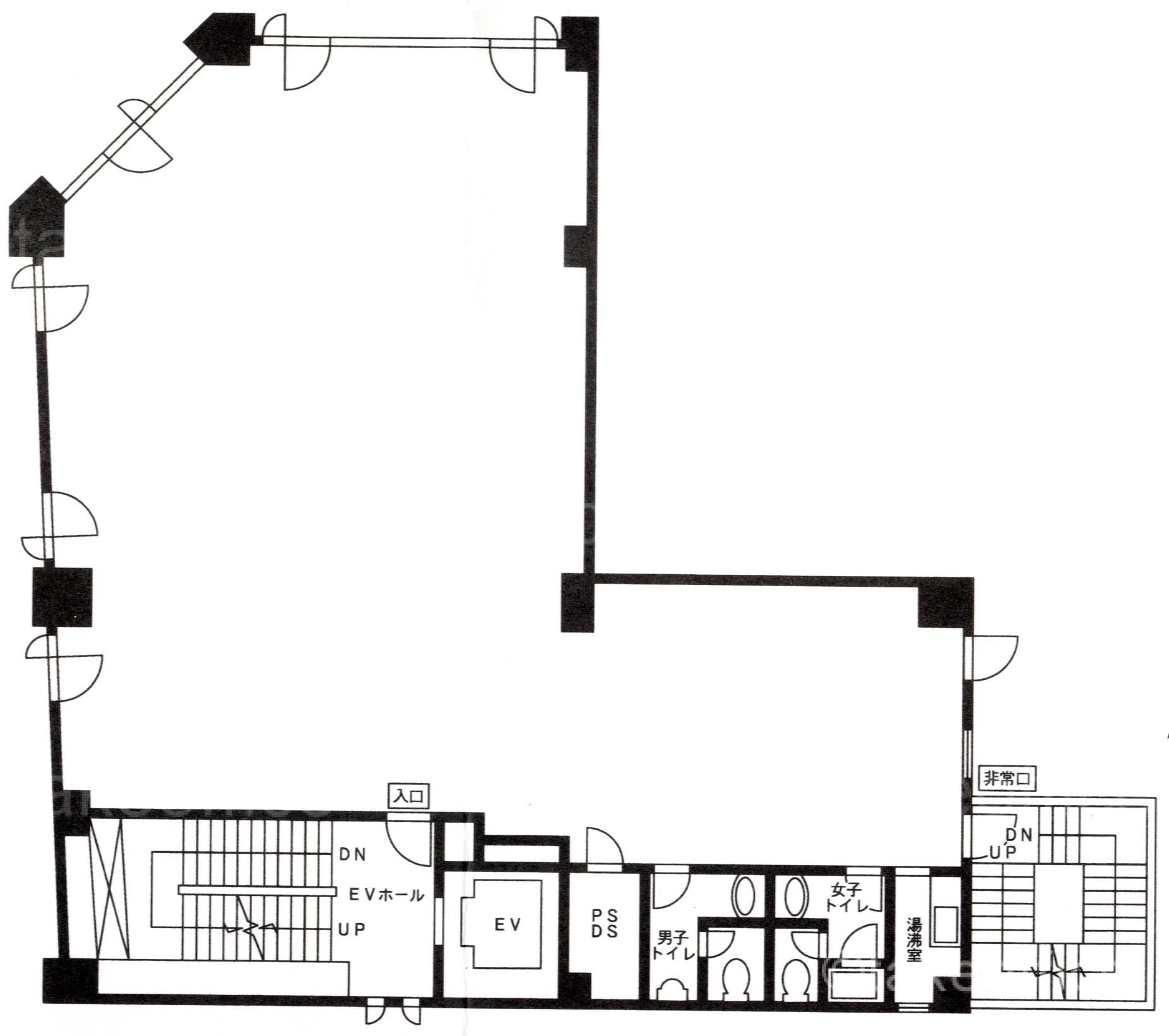
天井高 - 基準階面積 48.65坪(160.83m2)
コンセント容量 - 施工会社

最新の募集状況や類似物件については、
こちらにお問い合わせください。

こうしんビル 外観

外観

内見やお見積りなどの各種お問い合わせ

全物件
仲介手数料無料
仲介から
入居工事まで
ワンストップで対応
経験豊富なスタッフが
スピード感をもって
対応

周辺での似た条件の物件

非公開物件 多数あり!

お問い合わせフォーム