takeofficeなら掲載物件の仲介手数料は無料です

クラシックビル

住所 東京都台東区台東3-12-5
交通 東京メトロ日比谷線仲御徒町」 徒歩3分
JR山手線御徒町」 徒歩5分
東京メトロ銀座線末広町」 徒歩8分
竣工 2010年03月 構造 鉄骨造
規模 地上10階 耐震基準 新耐震基準
床構造 フリーアクセス 空調設備 個別空調
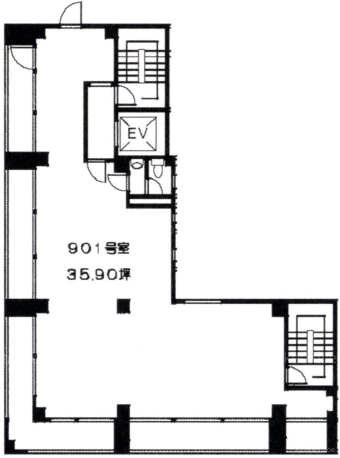
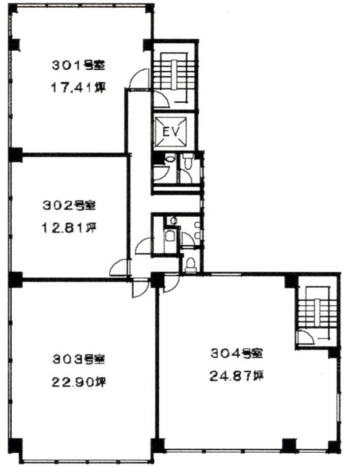
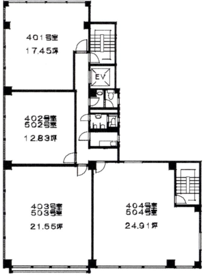
天井高 - 基準階面積 76.74坪(253.69m2)
コンセント容量 - 施工会社

最新の募集状況や類似物件については、
こちらにお問い合わせください。

クラシックビル 外観

外観

内見やお見積りなどの各種お問い合わせ

全物件
仲介手数料無料
仲介から
入居工事まで
ワンストップで対応
経験豊富なスタッフが
スピード感をもって
対応

周辺での似た条件の物件

非公開物件 多数あり!

お問い合わせフォーム