takeofficeなら掲載物件の仲介手数料は無料です

明治安田生命秋葉原ビル

住所 東京都台東区秋葉原5-9
交通 JR山手線秋葉原」 徒歩8分
東京メトロ銀座線末広町」 徒歩4分
東京メトロ日比谷線仲御徒町」 徒歩6分
竣工 1985年06月 構造 SRC
規模 地上8階 耐震基準 新耐震基準
床構造 フリーアクセス 空調設備 個別空調
天井高 2450mm 基準階面積 131.97坪(436.26m2)
コンセント容量 - 施工会社

最新の募集状況や類似物件については、
こちらにお問い合わせください。

明治安田生命秋葉原ビル 外観

外観

  • 明治安田生命秋葉原ビル エントランス写真

    エントランス

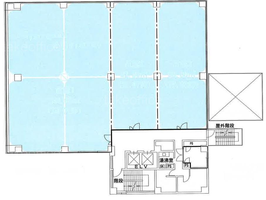
  • 基準階(2F~8F)

    基準階(2F~8F)

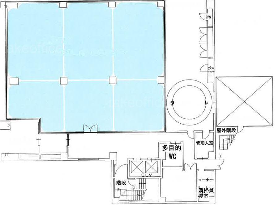
  • 1F

    1F

建物パンフレット

建物パンフレットは作成時点のものであり、また計画段階のものも含まれる為、実際とは異なる場合がございます。

内見やお見積りなどの各種お問い合わせ

全物件
仲介手数料無料
仲介から
入居工事まで
ワンストップで対応
経験豊富なスタッフが
スピード感をもって
対応

周辺での似た条件の物件

非公開物件 多数あり!

お問い合わせフォーム