takeofficeなら掲載物件の仲介手数料は無料です

上野広小路会館

住所 東京都台東区上野1-19-10
交通 都営大江戸線上野御徒町」 徒歩1分
JR山手線御徒町」 徒歩3分
東京メトロ銀座線上野広小路」 徒歩2分
竣工 1972年02月 構造 SRC+鉄骨造
規模 地上11階, 地下1階 耐震基準 新耐震基準
床構造 フリーアクセス 空調設備 セントラル空調
天井高 2450mm 基準階面積 204.26坪(675.24m2)
コンセント容量 - 施工会社

最新の募集状況や類似物件については、
こちらにお問い合わせください。

上野広小路会館 外観

外観

  • NOW PRINTING

    エントランス

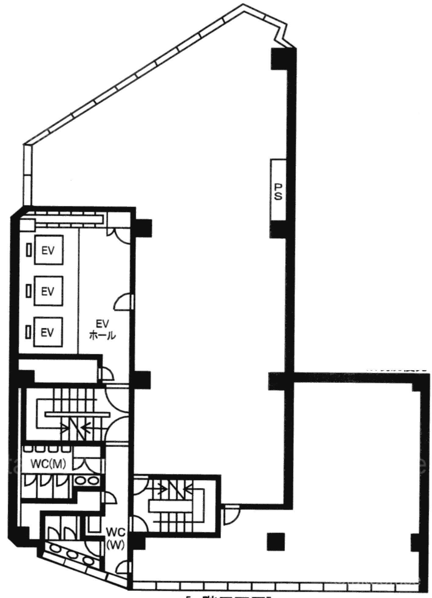
  • 8~11F

    8~11F

  • 3F

    3F

内見やお見積りなどの各種お問い合わせ

全物件
仲介手数料無料
仲介から
入居工事まで
ワンストップで対応
経験豊富なスタッフが
スピード感をもって
対応

周辺での似た条件の物件

非公開物件 多数あり!

お問い合わせフォーム