takeofficeなら掲載物件の仲介手数料は無料です

上野HSビル

住所 東京都台東区上野2-7-7
交通 東京メトロ銀座線上野広小路」 徒歩2分
東京メトロ千代田線湯島」 徒歩2分
JR山手線上野」 徒歩5分
竣工 1993年06月 構造 鉄骨造+SRC
規模 地上9階, 地下1階 耐震基準 新耐震基準
床構造 フリーアクセス 70mm 空調設備 個別空調
天井高 2500mm 基準階面積 145.4坪(480.66m2)
コンセント容量 - 施工会社

最新の募集状況や類似物件については、
こちらにお問い合わせください。

上野HSビル 外観

外観

  • 上野HSビル エントランス写真

    エントランス

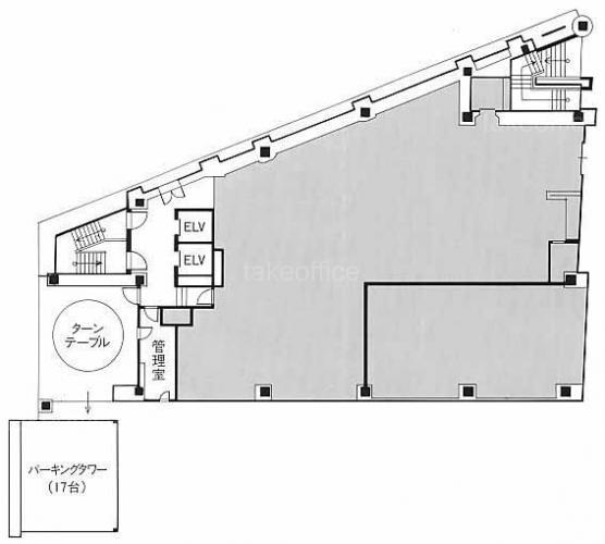
  • 基準階(2~8F)

    基準階(2~8F)

  • 1F

    1F

  • B1F

    B1F

内見やお見積りなどの各種お問い合わせ

全物件
仲介手数料無料
仲介から
入居工事まで
ワンストップで対応
経験豊富なスタッフが
スピード感をもって
対応

周辺での似た条件の物件

非公開物件 多数あり!

お問い合わせフォーム