takeofficeなら掲載物件の仲介手数料は無料です

秋葉原新高第一生命ビル

住所 東京都台東区上野3-1-2
交通 東京メトロ銀座線末広町」 徒歩1分
JR山手線秋葉原」 徒歩4分
JR山手線御徒町」 徒歩4分
竣工 1989年06月 構造 SRC
規模 地上8階 耐震基準 新耐震基準
床構造 フリーアクセス 空調設備 個別空調
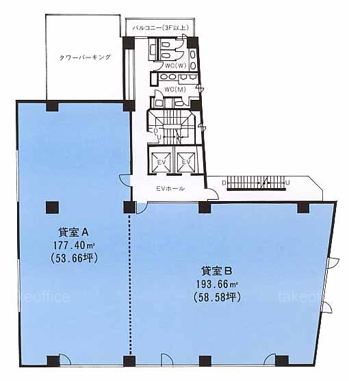
天井高 - 基準階面積 112.13坪(370.68m2)
コンセント容量 - 施工会社

最新の募集状況や類似物件については、
こちらにお問い合わせください。

秋葉原新高第一生命ビル 外観

外観

内見やお見積りなどの各種お問い合わせ

全物件
仲介手数料無料
仲介から
入居工事まで
ワンストップで対応
経験豊富なスタッフが
スピード感をもって
対応

周辺での似た条件の物件

非公開物件 多数あり!

お問い合わせフォーム