takeofficeなら掲載物件の仲介手数料は無料です

新ジイドビル

住所 東京都台東区上野3-22-8
交通 JR山手線御徒町」 徒歩1分
東京メトロ銀座線上野広小路」 徒歩2分
都営大江戸線上野御徒町」 徒歩2分
竣工 1988年02月 構造 鉄骨造
規模 地上10階 耐震基準 新耐震基準
床構造 - 空調設備 個別空調
天井高 - 基準階面積 47.51坪(157.06m2)
コンセント容量 - 施工会社

最新の募集状況や類似物件については、
こちらにお問い合わせください。

新ジイドビル 外観

外観

  • 新ジイドビル エントランス写真

    エントランス

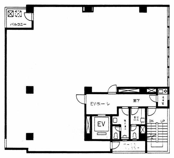
  • 基準階(2~4F)

    基準階(2~4F)

内見やお見積りなどの各種お問い合わせ

全物件
仲介手数料無料
仲介から
入居工事まで
ワンストップで対応
経験豊富なスタッフが
スピード感をもって
対応

周辺での似た条件の物件

非公開物件 多数あり!

お問い合わせフォーム