takeofficeなら掲載物件の仲介手数料は無料です

松村ビル

住所 東京都台東区上野6-16-20
交通 JR山手線上野」 徒歩3分
竣工 1988年01月 構造 SRC
規模 地上9階, 地下1階 耐震基準 新耐震基準
床構造 フリーアクセス 50mm 空調設備 フロア別空調
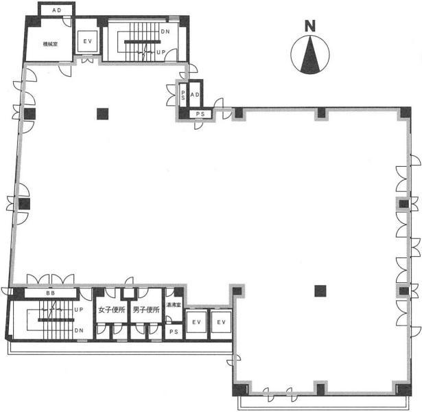
天井高 2530mm 基準階面積 169.17坪(559.24m2)
コンセント容量 - 施工会社

最新の募集状況や類似物件については、
こちらにお問い合わせください。

松村ビル 外観

外観

  • 松村ビル エントランス写真

    エントランス

内見やお見積りなどの各種お問い合わせ

全物件
仲介手数料無料
仲介から
入居工事まで
ワンストップで対応
経験豊富なスタッフが
スピード感をもって
対応

周辺での似た条件の物件

非公開物件 多数あり!

お問い合わせフォーム