takeofficeなら掲載物件の仲介手数料は無料です

アクシオビル

住所 東京都台東区上野7-9-15
交通 JR山手線上野」 徒歩4分
東京メトロ日比谷線上野」 徒歩4分
竣工 1987年08月 構造 SRC
規模 地上9階 耐震基準 新耐震基準
床構造 - 空調設備 個別空調
天井高 - 基準階面積 41坪(135.54m2)
コンセント容量 - 施工会社

最新の募集状況や類似物件については、
こちらにお問い合わせください。

アクシオビル 外観

外観

  • NOW PRINTING

    エントランス

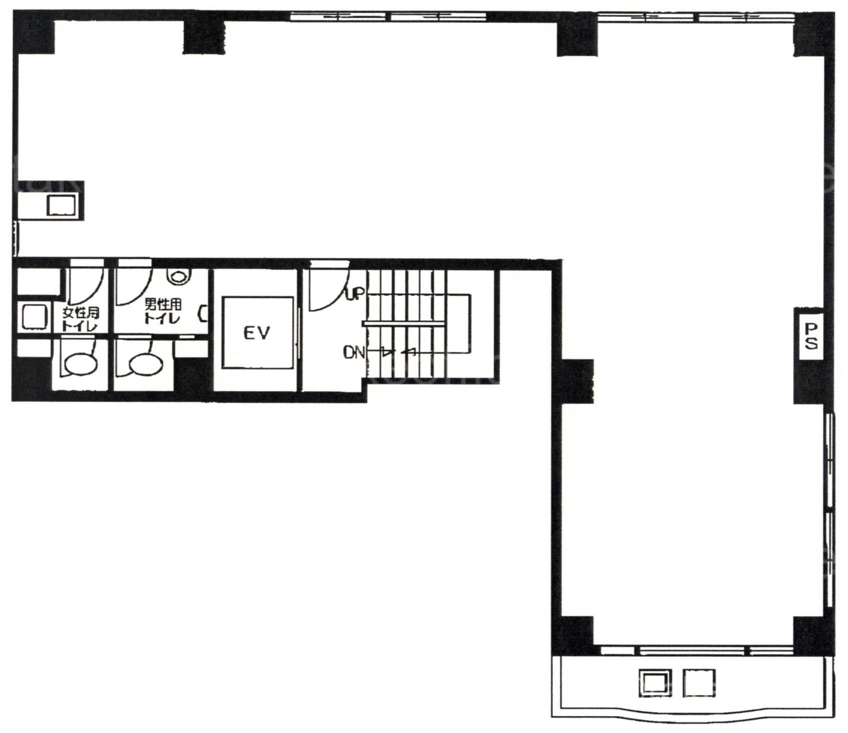
  • 基準階(2~6F

    基準階(2~6F

内見やお見積りなどの各種お問い合わせ

全物件
仲介手数料無料
仲介から
入居工事まで
ワンストップで対応
経験豊富なスタッフが
スピード感をもって
対応

周辺での似た条件の物件

非公開物件 多数あり!

お問い合わせフォーム