takeofficeなら掲載物件の仲介手数料は無料です

オリックス上野1丁目ビル

住所 東京都台東区上野1-1-10
交通 JR山手線御徒町」 徒歩4分
東京メトロ銀座線上野広小路」 徒歩4分
東京メトロ千代田線湯島」 徒歩4分
竣工 2016年09月 構造 鉄骨造+SRC
規模 地上10階, 地下1階 耐震基準 新耐震基準
床構造 フリーアクセス 100mm 空調設備 個別空調
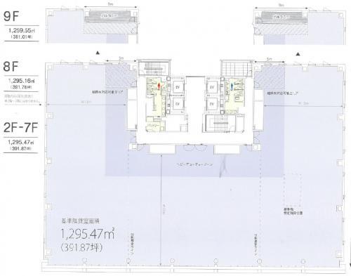
天井高 2800mm 基準階面積 391.87坪(1295.44m2)
コンセント容量 - 施工会社

最新の募集状況や類似物件については、
こちらにお問い合わせください。

オリックス上野1丁目ビル 外観

外観

  • オリックス上野1丁目ビル エントランス写真

    エントランス

  • 基準階

    基準階

建物パンフレット

建物パンフレットは作成時点のものであり、また計画段階のものも含まれる為、実際とは異なる場合がございます。

内見やお見積りなどの各種お問い合わせ

全物件
仲介手数料無料
仲介から
入居工事まで
ワンストップで対応
経験豊富なスタッフが
スピード感をもって
対応

周辺での似た条件の物件

非公開物件 多数あり!

お問い合わせフォーム