takeofficeなら掲載物件の仲介手数料は無料です

KN代官山

住所 東京都目黒区中目黒1-1-71
交通 東横線代官山」 徒歩5分
東横線中目黒」 徒歩7分
JR山手線恵比寿」 徒歩8分
竣工 1972年 月 構造 SRC
規模 地上10階, 地下2階 耐震基準 旧耐震基準
床構造 フリーアクセス 50mm 空調設備 個別空調
天井高 2400mm 基準階面積 219坪(723.97m2)
コンセント容量 - 施工会社

最新の募集状況や類似物件については、
こちらにお問い合わせください。

KN代官山 外観

外観

  • KN代官山 エントランス写真

    エントランス

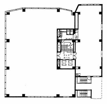
  • 2~4F

    2~4F

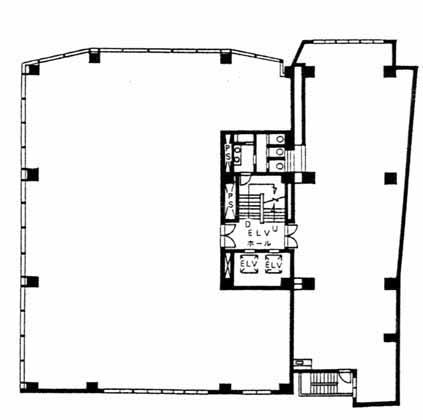
  • 5~6F

    5~6F

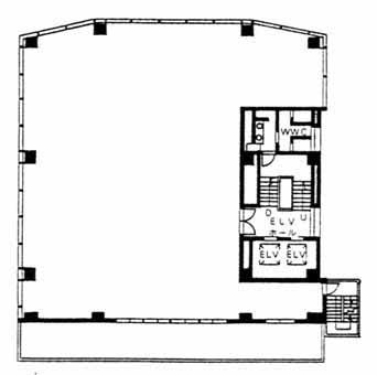
  • 7F

    7F

  • 8F

    8F

  • 9F

    9F

内見やお見積りなどの各種お問い合わせ

全物件
仲介手数料無料
仲介から
入居工事まで
ワンストップで対応
経験豊富なスタッフが
スピード感をもって
対応

周辺での似た条件の物件

非公開物件 多数あり!

お問い合わせフォーム