takeofficeなら掲載物件の仲介手数料は無料です

目黒F2ビル

住所 東京都目黒区中目黒1-8-8
交通 東京メトロ日比谷線中目黒」 徒歩6分
東横線中目黒」 徒歩6分
JR山手線恵比寿」 徒歩11分
竣工 1989年02月 構造 RC
規模 地上5階, 地下1階 耐震基準 新耐震基準
床構造 フリーアクセス 空調設備 個別空調
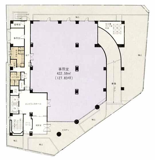
天井高 2550mm 基準階面積 199.01坪(657.88m2)
コンセント容量 - 施工会社

最新の募集状況や類似物件については、
こちらにお問い合わせください。

目黒F2ビル 外観

外観

  • NOW PRINTING

    エントランス

  • 2~3F

    2~3F

  • 1F

    1F

  • 4F

    4F

  • 5F

    5F

内見やお見積りなどの各種お問い合わせ

全物件
仲介手数料無料
仲介から
入居工事まで
ワンストップで対応
経験豊富なスタッフが
スピード感をもって
対応

周辺での似た条件の物件

非公開物件 多数あり!

お問い合わせフォーム