takeofficeなら掲載物件の仲介手数料は無料です

京急建設イマスビル

住所 東京都目黒区中目黒2-6-20
交通 東京メトロ日比谷線中目黒」 徒歩10分
東横線中目黒」 徒歩10分
JR山手線目黒」 徒歩15分
竣工 1991年12月 構造 RC
規模 地上6階 耐震基準 新耐震基準
床構造 フリーアクセス 空調設備 個別空調
天井高 2520mm 基準階面積 194.28坪(642.25m2)
コンセント容量 - 施工会社

最新の募集状況や類似物件については、
こちらにお問い合わせください。

京急建設イマスビル 外観

外観

  • 京急建設イマスビル エントランス写真

    エントランス

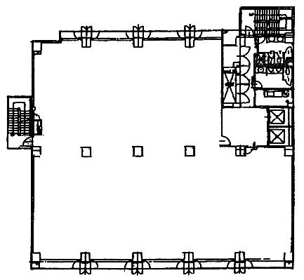
  • 基準階(2~3F)

    基準階(2~3F)

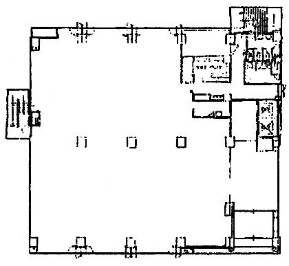
  • 1F

    1F

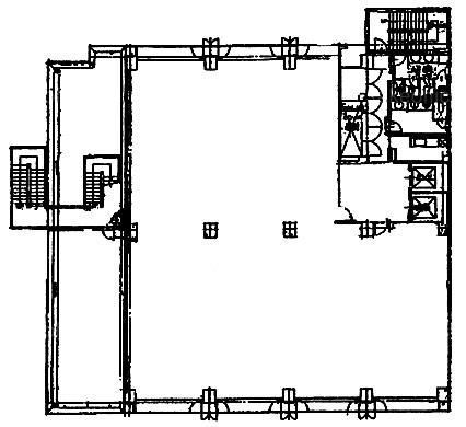
  • 4F

    4F

  • 5~6F

    5~6F

建物パンフレット

建物パンフレットは作成時点のものであり、また計画段階のものも含まれる為、実際とは異なる場合がございます。

内見やお見積りなどの各種お問い合わせ

全物件
仲介手数料無料
仲介から
入居工事まで
ワンストップで対応
経験豊富なスタッフが
スピード感をもって
対応

周辺での似た条件の物件

非公開物件 多数あり!

お問い合わせフォーム