takeofficeなら掲載物件の仲介手数料は無料です

GC中目黒ビル(旧:NJK中目黒ビル)

住所 東京都目黒区中目黒4-8-2
交通 東横線中目黒」 徒歩12分
JR山手線目黒」 徒歩18分
竣工 1994年03月 構造 SRC
規模 地上8階 耐震基準 新耐震基準
床構造 - 空調設備 個別空調
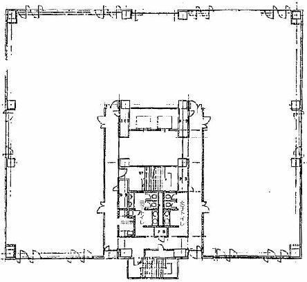
天井高 2600mm 基準階面積 213.68坪(706.38m2)
コンセント容量 - 施工会社

最新の募集状況や類似物件については、
こちらにお問い合わせください。

GC中目黒ビル(旧:NJK中目黒ビル) 外観

外観

  • GC中目黒ビル(旧:NJK中目黒ビル) エントランス写真

    エントランス

内見やお見積りなどの各種お問い合わせ

全物件
仲介手数料無料
仲介から
入居工事まで
ワンストップで対応
経験豊富なスタッフが
スピード感をもって
対応

周辺での似た条件の物件

非公開物件 多数あり!

お問い合わせフォーム