takeofficeなら掲載物件の仲介手数料は無料です

NMビル

住所 東京都目黒区上目黒1-18-6
交通 東京メトロ日比谷線中目黒」 徒歩2分
東横線代官山」 徒歩12分
JR山手線恵比寿」 徒歩13分
竣工 1997年10月 構造 SRC
規模 地上5階 耐震基準 新耐震基準
床構造 - 空調設備 個別空調
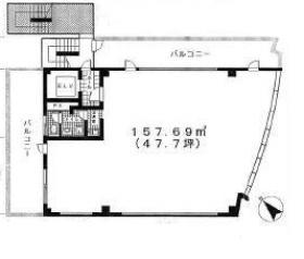
天井高 - 基準階面積 47.7坪(157.69m2)
コンセント容量 - 施工会社

最新の募集状況や類似物件については、
こちらにお問い合わせください。

NMビル 外観

外観

  • NOW PRINTING

    エントランス

内見やお見積りなどの各種お問い合わせ

全物件
仲介手数料無料
仲介から
入居工事まで
ワンストップで対応
経験豊富なスタッフが
スピード感をもって
対応

周辺での似た条件の物件

非公開物件 多数あり!

お問い合わせフォーム