takeofficeなら掲載物件の仲介手数料は無料です

フォーラム中目黒

住所 東京都目黒区東山1-6-7
交通 東京メトロ日比谷線中目黒」 徒歩3分
竣工 1986年01月 構造 鉄骨造
規模 地上10階 耐震基準 新耐震基準
床構造 - 空調設備 -
天井高 - 基準階面積 --
コンセント容量 - 施工会社

最新の募集状況や類似物件については、
こちらにお問い合わせください。

フォーラム中目黒 外観

外観

  • フォーラム中目黒 エントランス写真

    エントランス

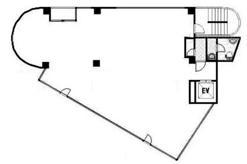
  • 基準階

    基準階

内見やお見積りなどの各種お問い合わせ

全物件
仲介手数料無料
仲介から
入居工事まで
ワンストップで対応
経験豊富なスタッフが
スピード感をもって
対応

周辺での似た条件の物件

非公開物件 多数あり!

お問い合わせフォーム