takeofficeなら掲載物件の仲介手数料は無料です

池尻大橋ビル

住所 東京都目黒区大橋1-6-2
交通 田園都市線池尻大橋」 徒歩7分
井の頭線神泉」 徒歩13分
井の頭線駒場東大前」 徒歩16分
竣工 1988年09月 構造 SRC+RC
規模 地上9階, 地下2階 耐震基準 新耐震基準
床構造 - 空調設備 個別空調
天井高 2460mm 基準階面積 64.3坪(212.56m2)
コンセント容量 - 施工会社

最新の募集状況や類似物件については、
こちらにお問い合わせください。

池尻大橋ビル 外観

外観

  • 池尻大橋ビル エントランス写真

    エントランス

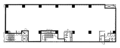
  • 基準階(4~9F)

    基準階(4~9F)

  • 2F

    2F

  • 3F

    3F

内見やお見積りなどの各種お問い合わせ

全物件
仲介手数料無料
仲介から
入居工事まで
ワンストップで対応
経験豊富なスタッフが
スピード感をもって
対応

周辺での似た条件の物件

非公開物件 多数あり!

お問い合わせフォーム