takeofficeなら掲載物件の仲介手数料は無料です

DS三軒茶屋ビル

住所 東京都世田谷区太子堂4-3-2
交通 田園都市線三軒茶屋」 徒歩3分
世田谷線西太子堂」 徒歩5分
竣工 1981年11月 構造 RC
規模 地上8階, 地下1階 耐震基準 旧耐震基準
床構造 - 空調設備 個別空調
天井高 - 基準階面積 --
コンセント容量 - 施工会社

最新の募集状況や類似物件については、
こちらにお問い合わせください。

DS三軒茶屋ビル 外観

外観

  • NOW PRINTING

    エントランス

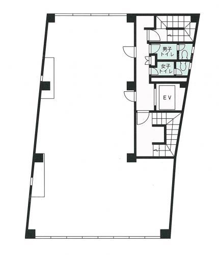
  • 7F

    7F

内見やお見積りなどの各種お問い合わせ

全物件
仲介手数料無料
仲介から
入居工事まで
ワンストップで対応
経験豊富なスタッフが
スピード感をもって
対応

周辺での似た条件の物件

非公開物件 多数あり!

お問い合わせフォーム