takeofficeなら掲載物件の仲介手数料は無料です

経堂フコク生命ビル

住所 東京都世田谷区宮坂3-10-9
交通 小田急線経堂」 徒歩4分
竣工 1985年08月 構造 SRC
規模 地上5階, 地下0階 耐震基準 新耐震基準
床構造 - 空調設備 個別空調
天井高 - 基準階面積 --
コンセント容量 - 施工会社

最新の募集状況や類似物件については、
こちらにお問い合わせください。

NOW PRINTING

外観

  • NOW PRINTING

    エントランス

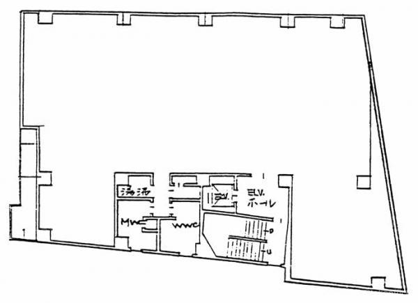
  • 2F

    2F

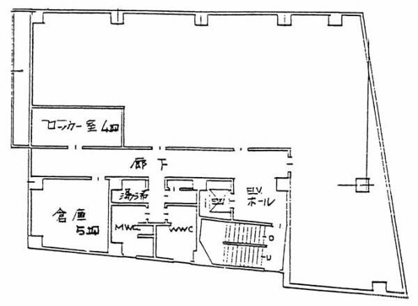
  • 1F

    1F

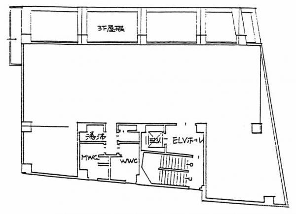
  • 3F

    3F

  • 4F

    4F

内見やお見積りなどの各種お問い合わせ

全物件
仲介手数料無料
仲介から
入居工事まで
ワンストップで対応
経験豊富なスタッフが
スピード感をもって
対応

周辺での似た条件の物件

非公開物件 多数あり!

お問い合わせフォーム